Смотрите нас на Rutube
Смотрите нас на YouTube
Новости
Logo
  • Главная
  • Каркасные дома
  • Барнхаус
  • Кирпичные дома
  • Дома из Газобетона
  • Построенные дома
  • Отзывы
  • Проектирование
  • Ипотека
  • Дополнительно
    • Контакты
    • Вакансии
    • Партнеры
    • Брусовые дома
    • Бани
    • Фундаменты
    • Дома в продаже
    • Модульные дома
WhatsApp
Telegram
Rutube
Москва, ул. Докукина, 17, стр. 3 этаж 2, офис 16
8 (995) 166-67-77

Звоните сейчас

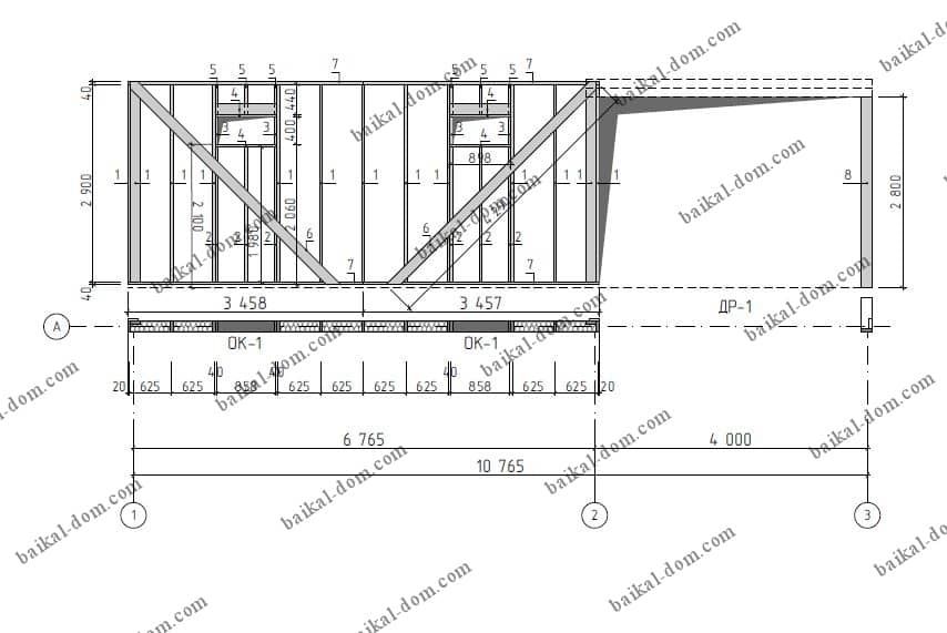
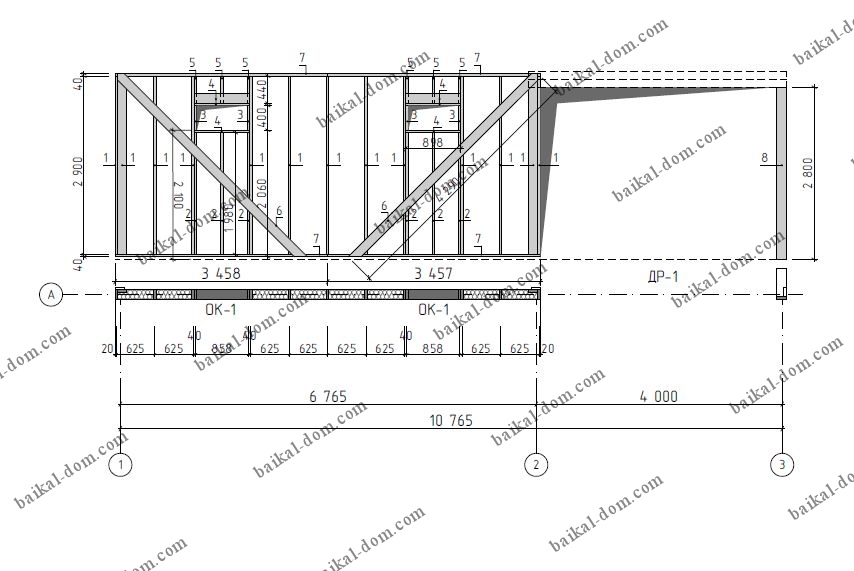
Проект каркасного гаража 48
описание

  • Количество этажей: 1
  • Площадь застройки: 48 кв.м. 
  • Габаритные размеры дома: 10,7 х 4,3 м. 

Одноэтажный каркасный гараж с летней кухней

Данный проект разработан в компании "Байкал Дом". Конструктивно дом выполнен
- на фундаменте из железобетонной плиты 200мм;
- несущими каркасными стенами и навесным вентилируемым фасадом облицованным имитацией бруса с утеплением минплитой из базальта с толщиной 150мм;
- крыша односкатная из металлочерепицы;
- наружные ПВХ светопрозрачные с раздвижным механизмом;
- гаражные ворота секционные подъемные.

Каркасный гараж под ключ
2 300 000
на жб плите, фасад имитация бруса, секционные ворота

Проект каркасного гаража 48 описание

Каркасный гараж под ключ
2 300 000
на жб плите, фасад имитация бруса, секционные ворота

Одноэтажный каркасный гараж с летней кухней

  • Количество этажей: 1
  • Площадь застройки: 48 кв.м. 
  • Габаритные размеры дома: 10,7 х 4,3 м. 
Данный проект разработан в компании "Байкал Дом". Конструктивно дом выполнен
- на фундаменте из железобетонной плиты 200мм;
- несущими каркасными стенами и навесным вентилируемым фасадом облицованным имитацией бруса с утеплением минплитой из базальта с толщиной 150мм;
- крыша односкатная из металлочерепицы;
- наружные ПВХ светопрозрачные с раздвижным механизмом;
- гаражные ворота секционные подъемные.

Этот каркасный гараж мы построили


Комплектация - предчистовая отделка 

Проект Каркасный гараж 48

Конструктивно дом выполнен
- на фундаменте из железобетонной плиты 200мм;
- несущими каркасными стенами и навесным вентилируемым фасадом облицованным имитацией бруса с утеплением минплитой из базальта с толщиной 150мм;
- крыша односкатная из металлочерепицы;
- наружные ПВХ светопрозрачные с раздвижным механизмом;
- гаражные ворота секционные подъемные.

Комплектация домов по каркасной технологии

Мы можем построить для Вас дом в любой комплектации, но для Вашего удобства мы разработали две понятные комплектации, на которые заранее рассчитали стоимость и указали её в каталоге
Стандарт
Оптимальный
Фундамент
Фундамент
Железобетонные сваи сечением 150х150мм с ростверком из лиственницы. 
Кровельное покрытие
Кровельное покрытие
Металлочерепица 0,40 мм с покрытием Полиэстер, гарантия до 5 лет
Силовой каркас
Силовой каркас
Доска сухая (камерной сушки) строганная в соответствии с проектом. Сборка каркаса дома с укосинами.
Каркас собирается на оцинкованные ершеные гвозди.
Усиленные лаги пола первого и второго этажа с шагом 400мм
Входная дверь и окна
Входная дверь и окна
4-х камерный профиль Veka WHS, система оконных профилей класса В по ГОСТ 30673
Входная дверь с терморазрывом
Фасад и внешняя отделка
Фасад и внешняя отделка
Виниловый сайдинг с вентилируемым зазором, обрамление окон и дверей ПВХ, отливы оконные металлические. Подшивка карнизов и потолка террасы перфорированными ПВХ софитами.
Утепление дома
Утепление дома
Перекрытия 200 мм – эковата
Стены – 150 мм – базальтовый утеплитель
Кровля (если мансардный этаж или второй свет) 200 мм – базальтовый утеплитель
Пароизоляция СИЖ-П с проклейкой швов скотчем Дельта. 
Шумоизоляция перегородок 100мм.
Супер диффузионная мембрана на фасаде дома.
Внутренняя отделка черновая
Внутренняя отделка черновая
Черновой пол OSB 18мм (под чистовую отделку или под устройство теплого водяного пола с полусухой стяжкой)
Инженерные коммуникации
Инженерные коммуникации
Закладные под инженерные коммуникации в с/у/котельной. Монтаж клапанов инфильтрации воздуха КИВ в спальнях, монтаж проходных элементов вытяжки воздуха из кухни и санузлов.
Срок строительства
Срок строительства
До трех месяцев
Фундамент
Фундамент
Железобетонные сваи сечением 150х150мм с ростверком из лиственницы. Монолитный: жб плита или лента, в соответствии с проектным решением.
Кровельное покрытие
Кровельное покрытие
Металлочерепица 0,50 мм с покрытием NormanMP, гарантия до 20 лет
Силовой каркас
Силовой каркас
Доска сухая (камерной сушки) строганная в соответствии с проектом. 
Сборка каркаса дома с плитной обшивкой OSB.
Каркас собирается на оцинкованные ершеные гвозди.
Усиленные лаги пола первого и второго этажа с шагом 400мм
Входная дверь и окна
Входная дверь и окна
5-ти камерный VEKA Softline 70, система обладает высокими изолирующими характеристиками, класс А+
Входная дверь с терморазрывом.
Фасад и внешняя отделка
Фасад и внешняя отделка
Фиброцементные панели с вентилируемым зазором, обрамление окон и дверей из фиброцементных панелей, отливы оконные металлические. Подшивка карнизов и потолка террасы перфорированными ПВХ софитами.
Утепление дома
Утепление дома
Только базальтовый утеплитель используется.
Перекрытия пола - 200 мм
Чердачные перекрытия - 200 мм основного + 50 мм перекрестного утепления
Стены – 150 мм основного+50 мм перекрестного утепления
Кровля (если мансардный этаж или второй свет) - 200 мм основного + 50 мм перекрестного утепления
Пароизоляция СИЖ-П с проклейкой швов скотчем Дельта. 
Шумоизоляция перегородок 150мм.
Супер диффузионная мембрана на фасаде дома.
Внутренняя отделка черновая
Внутренняя отделка черновая
Черновой пол OSB 18мм (под чистовую отделку или под устройство теплого водяного пола с полусухой стяжкой)
Инженерные коммуникации
Инженерные коммуникации
Закладные под инженерные коммуникации в с/у/котельной. Монтаж клапанов инфильтрации воздуха КИВ в спальнях, монтаж проходных элементов вытяжки воздуха из кухни и санузлов.
Срок строительства
Срок строительства
До трех месяцев
Понравился проект или нужен свой?
Позвоните нам или оставьте заявку, с радостью ответим на Ваши вопросы по условиям проектирования и строительства

Построить дом в ипотеку или кредит

Помогаем со льготной и семейной ипотекой (без первоначального взноса) - от 5%. 
Подробности у наших консультантов 
8 (995) 166-67-77
Аккредитованы в банках. Нам можно доверять

Почему клиенты выбирают Байкал Дом?

Ваши преимущества при работе с нами

Фиксирование цены
Фиксируем цену и не меняем её в процессе строительства.
Двойной технадзор
Штатный технадзор и главный инженер контролируют соблюдение техпроцессов и качество работ.
Видеонаблюдение
Круглосуточное видеонаблюдение на объекте. Предоставляем доступ со смартфона.

Выбор комплектации

На Ваш выбор: строительство коробки, с черновой или предчистовой отделкой, инженерные коммуникации.
Гарантия до 50 лет
Гарантийные обязательства фиксируются документально.
Гарантийные обязательства фиксируются документально
Регулярные отчёты и акты по этапам работ

Как проходит строительство - 6 шагов до дома Вашей мечты

Как мы работаем

Знакомство

Оставляете заявку на сайте или приезжайте к нам в офис

Бесплатный расчет

Предварительная оценка стоимости строительства Вашего дома

Заключение договора

Заключение договора на проектирование и строительство
Утверждение сметы
Согласование используемых материалов, этапов работ и оплат
Строительство дома
Строим дом с предоставлением регулярных отчетов и подписанием актов по этапам

Празднуем

Бутылочка шампанского в день подписания акта сдачи Вашего дома

Сделайте первый шаг к своему дому!

Консультация специалиста бесплатно

Подбираем участки клиентам

Строительство дома начинается с участка
Компания Байкал дом может помочь с продажей Вашего земельного участка.
Мы будем бесплатно предлагать Ваш участок нашим заказчикам.
Чтобы сотрудничать с нами, укажите номер телефона. Менеджер свяжется с Вами.

Контакты

Офис работает с 9.00 до 18.00 
Суббота, воскресенье с 11.00 до 14.00
По предварительной записи

 Адрес: г. Москва, ул. Докукина, 17 ст3
офис 12. 

Телефон: 8 (995) 166-6777

Email:baikaldomirk@mail.ru


Logo
Информация о ценах, скидках и акциях, указанная на сайте и в коммерческом предложении не является публичной офертой  (ст.435 ГК РФ, cт. 437 ГК РФ).
  • Проекты домов
  • Каркасные дома
  • Дома из Газобетона
  • Кирпичные дома
  • Брусовые дома
  • Модульные дома
  • Ипотека
  • Отзывы
  • Построенные дома
  • Дома в продаже
  • Фундаменты
  • Вакансии
  • Бани
Телефон: 8 (995) 166-67-77

Строительство домов в Москве, МО и Иркутске. Дома и коттеджи под ключ из газобетона, кирпича. Строительство энергоэффективных каркасных домов. Дома из бруса под ключ.

Оформить заявку

Проект небольшого дома с мансардой, с крытой боковой террасой

Простая форма дома, его небольшая площадь, двускатная крыша способствуют значительной экономии денежных средств во время строительства и эксплуатации. Открытая кухня зрительно увеличивает пространство дневной зоны. При желании ее можно сделать полностью или частично закрытой, чтобы отделить хозяйственный быт от остального пространства.
Большая крытая терраса станет прекрасным дополнением для отдыха на свежем воздухе. К тому же она позволит приготовить вкусный гриль в любую погоду. Кладовая расположенная рядом с кухней очень практична для хранения запасов и хозяйственной утвари. Планировка мансарды позволяет вносить изменения. Так, например, можно отказаться от самой маленькой спальни и разместить в ней ванную, «отдав» шкаф большой комнате. Ярко выраженный традиционный стиль по достоинству оценят любители классики в архитектуре

стоимость от 1380 тр

ПРОЕКТ ДВУХЭТАЖНОГО ДОМА С БОЛЬШОЙ ПЛОЩАДЬЮ ОСТЕКЛЕНИЯ

Простая форма и двускатная крыша делают дом экономичным в строительстве. Отсутствие несущих стен дают возможность вносить многочисленные изменения в планировку, кухню можно сделать закрытой, две ванные комнаты на втором этаже можно объединить, организовав на большем пространстве небольшой бассейн или сауну. Открытая кухня визуально увеличивает дневную зону.
Расположение камина в центре гостиной наполнит всю комнату неповторимым домашним шармом, а также позволит сократить затраты на отопление. Два выхода на террасу (в гостиной и в кухне) сделают пикник или ежедневный ужин на свежем воздухе более удобным. Сложная форма дневной зоны позволяет выделить три отдельных подзоны для кухни, столовой и гостиной, не нарушая целостности пространства. Большие площади остекления гарантируют хорошее естественное освещение.

стоимость от 1380 тр

Стильный современный дом с пятью спальнями и гаражом

Оригинальное оформление фасада привлекает внимание рядом интересных архитектурных элементов и комбинированием нескольких материалов. На первом этаже сформирована просторная зона отдыха, представляющая удобную гостиную, объединённую со столовой и кухней.
К ней примыкает небольшая комната и ванная, что можно использовать как комнату для гостей или кабинет. В прихожей, расположенной в центре, предусмотрено достаточное пространство для шкафа, а также объёмная гардеробная, из которой есть выход в гараж. В задней части гаража находится отдельное подсобное помещение. В мансарде оборудована ночная зона с четырьмя просторными спальнями и большой ванной комнатой, где будет достаточно места и для ванной, и для душа.

стоимость от 1380 тр

Экономичный в строительстве и реализации дом с удобной планировкой, с навесом для автомобиля

Преимущества проекта: Простая конструкция дома и двускатная кровля, его относительно небольшая площадь помогут вести строительные работы быстрее и проще, а также сократить строительные и эксплуатационные затраты.
Открытая кухня сделает гостиную визуально больше и светлее. Хотя при необходимости ее можно отделить стенной перегородкой. Частично крытая терраса сможет стать уютным местом летнего отдыха рядом с домом.

стоимость от 1380 тр

Маленький, уютный дом с мансардой, двускатной крышей и c фронтальной террасой

Отделка фасадов из натурального дерева придают дому уютный, «теплый» характер. Преимущества проекта: Простая форма дома, и двускатная крыша, его небольшая площадь помогут значительно сэкономить денежные средств во время строительства и эксплуатации.
Расположение несущих стен дает возможность вносить определенные изменения в планировку: так, например, можно увеличить площадь дополнительной комнаты на первом этаже за счет гостиной, либо наоборот увеличить площадь гостиной, отказавшись от дополнительной комнаты. Кухню можно сделать частично или полностью закрытой. Открытая кухня зрительно увеличивает пространство дневной зоны.

стоимость от 1380 тр

Комфортный дом с открытой мансардой в традиционном стиле

Благодаря такому архитектурному решению вы можете обустроить мансарду тогда, когда в этом возникнет необходимость.
Преимущества проекта: Удачное зонирование помещений позволило отделить ночную зону от дневной; расположение котельной позволяет разместить в ней любой тип котла; большие окна в гостиной обеспечат ее хорошее освещение даже в пасмурные дни; открытая дневная зона зрительно увеличивает размер гостиной и столовой; Двойной камин — выгодное преимущество для любителей гриля

стоимость от 1380 тр

Проект Z263

Проект Z263 представляет стильный современный дом с пятью спальнями и гаражом, созданный в современном стиле. Оригинальное оформление фасада привлекает внимание рядом интересных архитектурных элементов и комбинированием нескольких материалов.
На первом этаже сформирована просторная зона отдыха, представляющая удобную гостиную, объединённую со столовой и кухней. К ней примыкает небольшая комната и ванная, что можно использовать как комнату для гостей или кабинет.
В прихожей, расположенной в центре, предусмотрено достаточное пространство для шкафа, а также объёмная гардеробная, из которой есть выход в гараж. В задней части гаража находится отдельное подсобное помещение.
В мансарде оборудована ночная зона с четырьмя просторными спальнями и большой ванной комнатой, где будет достаточно места и для ванной, и для душа.
В проекте Z263 предложен нестандартный интерьер, в котором комфорт и оригинальность сочетаются с хорошо продуманным функциональным назначением.

от 24 000 ₽ за м2

Оформить заказ

Спасибо за заказ

Мы свяжемся с Вами в ближайшее время.
А пока можете скачать наш каталог презентацию домов!
Скачать каталог

Оформить заявку

Спасибо

Мы свяжемся с Вами в ближайшее время.
А пока можете скачать наш каталог презентацию домов!
Скачать каталог

Спасибо

Мы свяжемся с Вами в ближайшее время.
А пока можете скачать наш каталог презентацию домов!
Скачать каталог

Спасибо за заказ

Ваш заказ принят в обработку. 

Мы свяжемся с Вами в ближайшее время.