Смотрите нас на Rutube
Смотрите нас на YouTube
Новости
Logo
  • Главная
  • Каркасные дома
  • Барнхаус
  • Кирпичные дома
  • Дома из Газобетона
  • Построенные дома
  • Отзывы
  • Проектирование
  • Ипотека
  • Дополнительно
    • Контакты
    • Вакансии
    • Партнеры
    • Брусовые дома
    • Бани
    • Фундаменты
    • Дома в продаже
    • Модульные дома
WhatsApp
Telegram
Rutube
Москва, ул. Докукина, 17, стр. 3 этаж 2, офис 16
8 (995) 166-67-77

Звоните сейчас

Проект дома
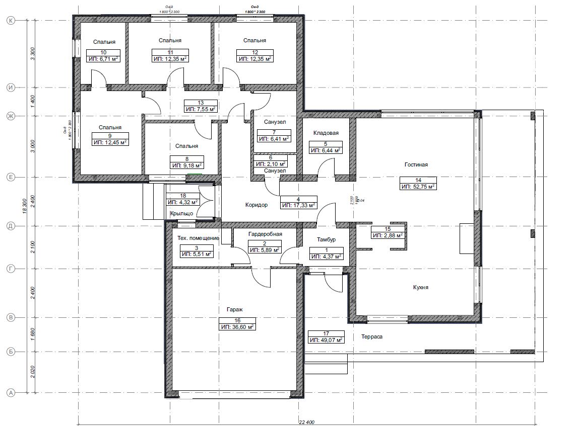
Риволи 246
описание

Данный дом возможно построить из газобетона или кирпича
  • Количество этажей: 1
  • Количество спален: 5
  • Площадь теплого контура: 246 кв.м.
  • Общая площадь помещений: 201 кв.м.
  • Площадь гаража: 37 кв.м.
  • Терраса: 49 кв.м.
  • Габаритные размеры дома: 18,3 х 22,4 м.

Этот дом из газобетона мы построили


Комплектация - коробка дома. р.п. Маркова

Проект Риволи - одноэтажный дом из газобетона

Фундамент железобетонная монолитная плита 300мм с подготовкой основания. Устройство скважины, смонтирован септик и кессон. Ввод сетей в дом под плитой. Стены и перегородки из газобетона. Плоская кровля: утепление, сухая стяжка, наплавляемая гидроизоляция. Отопление, водоснабжение и водоотведение в доме.

Большой одноэтажный дом из газобетона с гаражом и террасой


Коробка дома из газобетона
13 000 000
(железобетонная плита 300мм, стены из газоблоков 400мм, перекрытия деревянные, утепленная плоская кровля)
Окончательная цена зависит от даты расчета сметы, удаленности, геологии и геодезии участка, выбора типа фундамента.
Коробка из кирпича - плюс 10%


Проект дома Риволи 246 описание

Данный дом возможно построить из газобетона или кирпича
Коробка дома из газобетона
13 000 000
(железобетонная плита 300мм, стены из газоблоков 400мм, перекрытия деревянные, утепленная плоская кровля)
Окончательная цена зависит от даты расчета сметы, удаленности, геологии и геодезии участка, выбора типа фундамента.
Коробка из кирпича - плюс 10%


Большой одноэтажный дом из газобетона с гаражом и террасой

  • Количество этажей: 1
  • Количество спален: 5
  • Площадь теплого контура: 246 кв.м.
  • Общая площадь помещений: 201 кв.м.
  • Площадь гаража: 37 кв.м.
  • Терраса: 49 кв.м.
  • Жилая площадь здания: 106,2 кв.м.
  • Габаритные размеры дома: 18,3 х 22,4 м.

Построить дом в ипотеку или кредит

Помогаем со льготной и семейной ипотекой (без первоначального взноса) - от 5%. 
Подробности у наших консультантов 
8 (995) 166-67-77
Аккредитованы в банках. Нам можно доверять

Комплектация коробки дома из кирпича или газобетона

Можем предложить вам готовые варианты комплектации или составить индивидуальный вариант
Фундамент
Фундамент
Монолитные ленточные / столбчатые / свайные / монолитная плита — тип фундамента определяется на основании геологических изысканий на участке и технико-экономического анализа нескольких вариантов. Варианты фундаментов здесь.

Инженерные сети
Инженерные сети
Прокладка инженерных сетей в плите фундамента: канализация, водопровод, электроснабжение. 
Стены из кирпича
Стены из кирпича
Толщина от 250 до 380 мм, сердечники, сейсмопояс согласно проектных решений. Утепление внешних стен обязательно для жилых домов.
Стены из газобетона
Стены из газобетона
Автоклавные газобетонные блоки плотностью D600, прочностью B3.5, сердечники, армирование рядов, сейсмопояс согласно проектных решений. Толщина блоков несущих стен от 300 до 400 мм - зависит от того будет ли дом утепляться или нет.
Перегородки
Перегородки
Перегородки из газобетонных блоков или кирпича согласно проектным решениям.
Межэтажные перекрытия
Межэтажные перекрытия
Межэтажные перекрытия деревянные согласно проектным решениям. Монолитное железобетонное перекрытие (рассчитывается индивидуально).
Скатная кровля
Скатная кровля
Стропильная система из пиломатериала 1 сорта. 
Кровельное покрытие металлочерепица. Гибкая черепица, профлист (рассчитывается индивидуально).
Плоская кровля
Плоская кровля
Утепление экструдированным пенополистиролом, разуклонка (бетонная стяжка или плоские листы), устройство наплавляемой гидроизоляции с установкой сливных воронок и кровельных аэраторов.
Вентиляция
Вентиляция
Согласно проектным решениям проходные элементы через кровлю.

Посмотрите как мы строим

Комплектация Коробка Дома подробно

Отзыв заказчиков проекта Скай 160

Монолитная железобетонная плита

Отопление водяными полами в доме из газобетона
Больше видео на нашем канале
Наш канал на YouTube
Наш канал на YouTube
Канал компании Байкал Дом на YouTube
Понравился проект или нужен свой?
Позвоните нам или оставьте заявку, с радостью ответим на Ваши вопросы по условиям проектирования и строительства

Почему клиенты выбирают Байкал Дом?

Ваши преимущества при работе с нами

Фиксирование цены
Фиксируем цену и не меняем её в процессе строительства.
Двойной технадзор
Штатный технадзор и главный инженер контролируют соблюдение техпроцессов и качество работ.
Видеонаблюдение
Круглосуточное видеонаблюдение на объекте. Предоставляем доступ со смартфона.

Выбор комплектации

На Ваш выбор: строительство коробки, с черновой или предчистовой отделкой, инженерные коммуникации.
Гарантия до 50 лет
Гарантийные обязательства фиксируются документально.
Гарантийные обязательства фиксируются документально
Регулярные отчёты и акты по этапам работ

Как проходит строительство - 6 шагов до дома Вашей мечты

Как мы работаем

Знакомство

Оставляете заявку на сайте или приезжайте к нам в офис

Бесплатный расчет

Предварительная оценка стоимости строительства Вашего дома

Заключение договора

Заключение договора на проектирование и строительство
Утверждение сметы
Согласование используемых материалов, этапов работ и оплат
Строительство дома
Строим дом с предоставлением регулярных отчетов и подписанием актов по этапам

Празднуем

Бутылочка шампанского в день подписания акта сдачи Вашего дома

Сделайте первый шаг к своему дому!

Консультация специалиста бесплатно

Подбираем участки клиентам

Строительство дома начинается с участка
Компания Байкал дом может помочь с продажей Вашего земельного участка.
Мы будем бесплатно предлагать Ваш участок нашим заказчикам.
Чтобы сотрудничать с нами, укажите номер телефона. Менеджер свяжется с Вами.

Контакты

Офис работает с 9.00 до 18.00 
Суббота, воскресенье с 11.00 до 14.00
По предварительной записи

 Адрес: г. Москва, ул. Докукина, 17 ст3
офис 12. 

Телефон: 8 (995) 166-6777

Email:baikaldomirk@mail.ru


Logo
Информация о ценах, скидках и акциях, указанная на сайте и в коммерческом предложении не является публичной офертой  (ст.435 ГК РФ, cт. 437 ГК РФ).
  • Проекты домов
  • Каркасные дома
  • Дома из Газобетона
  • Кирпичные дома
  • Брусовые дома
  • Модульные дома
  • Ипотека
  • Отзывы
  • Построенные дома
  • Дома в продаже
  • Фундаменты
  • Вакансии
  • Бани
Телефон: 8 (995) 166-67-77

Строительство домов в Москве, МО и Иркутске. Дома и коттеджи под ключ из газобетона, кирпича. Строительство энергоэффективных каркасных домов. Дома из бруса под ключ.

Оформить заявку

Проект небольшого дома с мансардой, с крытой боковой террасой

Простая форма дома, его небольшая площадь, двускатная крыша способствуют значительной экономии денежных средств во время строительства и эксплуатации. Открытая кухня зрительно увеличивает пространство дневной зоны. При желании ее можно сделать полностью или частично закрытой, чтобы отделить хозяйственный быт от остального пространства.
Большая крытая терраса станет прекрасным дополнением для отдыха на свежем воздухе. К тому же она позволит приготовить вкусный гриль в любую погоду. Кладовая расположенная рядом с кухней очень практична для хранения запасов и хозяйственной утвари. Планировка мансарды позволяет вносить изменения. Так, например, можно отказаться от самой маленькой спальни и разместить в ней ванную, «отдав» шкаф большой комнате. Ярко выраженный традиционный стиль по достоинству оценят любители классики в архитектуре

стоимость от 1380 тр

ПРОЕКТ ДВУХЭТАЖНОГО ДОМА С БОЛЬШОЙ ПЛОЩАДЬЮ ОСТЕКЛЕНИЯ

Простая форма и двускатная крыша делают дом экономичным в строительстве. Отсутствие несущих стен дают возможность вносить многочисленные изменения в планировку, кухню можно сделать закрытой, две ванные комнаты на втором этаже можно объединить, организовав на большем пространстве небольшой бассейн или сауну. Открытая кухня визуально увеличивает дневную зону.
Расположение камина в центре гостиной наполнит всю комнату неповторимым домашним шармом, а также позволит сократить затраты на отопление. Два выхода на террасу (в гостиной и в кухне) сделают пикник или ежедневный ужин на свежем воздухе более удобным. Сложная форма дневной зоны позволяет выделить три отдельных подзоны для кухни, столовой и гостиной, не нарушая целостности пространства. Большие площади остекления гарантируют хорошее естественное освещение.

стоимость от 1380 тр

Стильный современный дом с пятью спальнями и гаражом

Оригинальное оформление фасада привлекает внимание рядом интересных архитектурных элементов и комбинированием нескольких материалов. На первом этаже сформирована просторная зона отдыха, представляющая удобную гостиную, объединённую со столовой и кухней.
К ней примыкает небольшая комната и ванная, что можно использовать как комнату для гостей или кабинет. В прихожей, расположенной в центре, предусмотрено достаточное пространство для шкафа, а также объёмная гардеробная, из которой есть выход в гараж. В задней части гаража находится отдельное подсобное помещение. В мансарде оборудована ночная зона с четырьмя просторными спальнями и большой ванной комнатой, где будет достаточно места и для ванной, и для душа.

стоимость от 1380 тр

Экономичный в строительстве и реализации дом с удобной планировкой, с навесом для автомобиля

Преимущества проекта: Простая конструкция дома и двускатная кровля, его относительно небольшая площадь помогут вести строительные работы быстрее и проще, а также сократить строительные и эксплуатационные затраты.
Открытая кухня сделает гостиную визуально больше и светлее. Хотя при необходимости ее можно отделить стенной перегородкой. Частично крытая терраса сможет стать уютным местом летнего отдыха рядом с домом.

стоимость от 1380 тр

Маленький, уютный дом с мансардой, двускатной крышей и c фронтальной террасой

Отделка фасадов из натурального дерева придают дому уютный, «теплый» характер. Преимущества проекта: Простая форма дома, и двускатная крыша, его небольшая площадь помогут значительно сэкономить денежные средств во время строительства и эксплуатации.
Расположение несущих стен дает возможность вносить определенные изменения в планировку: так, например, можно увеличить площадь дополнительной комнаты на первом этаже за счет гостиной, либо наоборот увеличить площадь гостиной, отказавшись от дополнительной комнаты. Кухню можно сделать частично или полностью закрытой. Открытая кухня зрительно увеличивает пространство дневной зоны.

стоимость от 1380 тр

Комфортный дом с открытой мансардой в традиционном стиле

Благодаря такому архитектурному решению вы можете обустроить мансарду тогда, когда в этом возникнет необходимость.
Преимущества проекта: Удачное зонирование помещений позволило отделить ночную зону от дневной; расположение котельной позволяет разместить в ней любой тип котла; большие окна в гостиной обеспечат ее хорошее освещение даже в пасмурные дни; открытая дневная зона зрительно увеличивает размер гостиной и столовой; Двойной камин — выгодное преимущество для любителей гриля

стоимость от 1380 тр

Проект Z263

Проект Z263 представляет стильный современный дом с пятью спальнями и гаражом, созданный в современном стиле. Оригинальное оформление фасада привлекает внимание рядом интересных архитектурных элементов и комбинированием нескольких материалов.
На первом этаже сформирована просторная зона отдыха, представляющая удобную гостиную, объединённую со столовой и кухней. К ней примыкает небольшая комната и ванная, что можно использовать как комнату для гостей или кабинет.
В прихожей, расположенной в центре, предусмотрено достаточное пространство для шкафа, а также объёмная гардеробная, из которой есть выход в гараж. В задней части гаража находится отдельное подсобное помещение.
В мансарде оборудована ночная зона с четырьмя просторными спальнями и большой ванной комнатой, где будет достаточно места и для ванной, и для душа.
В проекте Z263 предложен нестандартный интерьер, в котором комфорт и оригинальность сочетаются с хорошо продуманным функциональным назначением.

от 24 000 ₽ за м2

Оформить заказ

Спасибо за заказ

Мы свяжемся с Вами в ближайшее время.
А пока можете скачать наш каталог презентацию домов!
Скачать каталог

Оформить заявку

Спасибо

Мы свяжемся с Вами в ближайшее время.
А пока можете скачать наш каталог презентацию домов!
Скачать каталог

Спасибо

Мы свяжемся с Вами в ближайшее время.
А пока можете скачать наш каталог презентацию домов!
Скачать каталог

Спасибо за заказ

Ваш заказ принят в обработку. 

Мы свяжемся с Вами в ближайшее время.